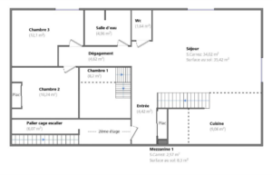
Exclusivité : Très bel appartement situé au 2è et dernier étage d’une bâtisse ancienne entièrement rénovée.
Beaux volumes : 103.72m² au sol (94.09m² carrez). Cet appartement comprend une entrée avec placard, un beau séjour toute hauteur avec cuisine ouverte équipée, une mezzanine pouvant faire office de bureau, coin lecture… Un dégagement dessert les wc, la salle d’eau et 3 chambres dont une avec mezzanine de couchage. Vous profiterez aussi d’un espace de 6m² sur le pallier et pouvant servir de rangement, stockage…
Vous disposerez aussi de 2 places de stationnement.
Beaucoup de charme avec les poutres apparentes, l’escalier pierre qui mène à l’appartement mais surtout une très belle luminosité et une vue dégagée.
“Les informations sur les risques auxquels ce bien est exposé sont disponibles sur le site Géorisques http://www.georisques.gouv.fr”.

















